欢迎进入冠畅电力公司官方网站!
冠畅电力
电话联系电话:020-3469 8669
当前位置:首页 > 输煤系列

MBF型埋刮板输粉机

简介:

MBF型埋刮板输粉机,广泛用于燃煤电厂贮仓式制粉系统煤粉仓间煤粉的输送,也可用于冶金、化工、建材等行业,作为输送粉状、小颗粒的物料设备,经电厂长期运行表明是同类设备中深受欢迎的创新产品。


结构特点:

回程链采用两种承托方式。一种内镶轴承的托辊承托,动力消耗少,刮板链条磨损大大减,回程链条在各托辊间自由下垂实现自动张紧链条,保证设备在链条较长的情况下仍能正常运行,适用于长距离输送;另一种内镶铸石托轨承托,磨擦系数小、耐摩损,大刮板在其上运行平稳,适用于倾斜短距离输送。

刮板采用双螺栓连接,牢固可靠,拆卸方便。

采用易拆合金钢模锻链作为输送链,耐磨损、强度高、寿命长、易拆卸。

张紧调节采用蜗轮蜗杆减速自锁张紧机构,调节省力,操作方便,并保证两侧同步张紧。

背负式驱动机构,受力好,节省空间,安装检修方便。

断链报警装置,可以及时发现断链、掉链故障,自动停机并发出报警信号。

过载保护装置,当链条过载时,自动停机并发出报警信号。

两种调速方式供用户选择:电磁调速与变频调速。具有效率高、调速范围广、精度高、调速平滑等特点。

机壳内无死角,不积料、不堵料、不粘结。

采用双向驱动装置,能长距离输送物料;驱动装置可正反方向运转,实现连续、均匀、平稳物料双向输送;能多点进料、多点卸料。



主要技术参数:

型号

参数

MBF250

MBF300

MBF400

MBF500

刮板宽度 (mm)

250

300

400

500

壳槽宽度(mm)

280

330

440

550

刮板间距(mm)

406.4

609.6

609.6

609.6

最大出力 (t/h)

15

30

50

70

最大输送距离(m)

50

70

80

90

电机功率 (kW)

2×3~2×7.5

2×4~2×11

2×5.5~2×15

2×5.5~2×18.5

注:1. 最大输送距离大于表中数值时,需特殊设计。 2.电机功率大小根据输送距离及出力大小选定。

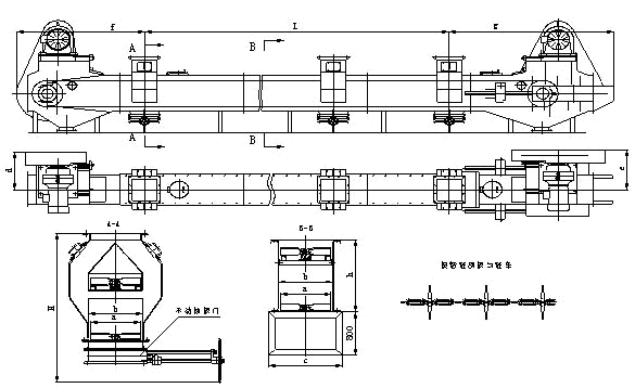
MBF型埋刮板输粉机外形尺寸图:



主要外形尺寸:

型号

尺寸

MBF250

MBF300

MBF400

MBF500

H

1200

1300

1400

1500

L

≤50m

≤80m

≤80m

≤80m

h

510

670

670

670

a

250

300

400

500

b

280

330

440

550

c

440

490

600

700

d

600

650

700

750

e

650

700

750

800

f

1800

2100

2100

2100

g

2500

2700

2700

2700

注:表中尺寸未注单位:mm,表中尺寸及外形尺寸图作为参考,根据用户要求及现场布置,可作变化。

选型与订货:用户选用MBF型埋刮板输粉机应提供设备出力、输送距离、进出料口标高、接口尺寸及与之相关的布置、供货范围等资料。

 

地址:广州市番禺区金山大道西金山工业园A栋303
广州冠畅电力设备有限公司 Copyright◎2013
粤ICP备130751230号 专注火力、生物质、垃圾焚烧、LNG发电配套设备服务的企业!