
| ||||||||||||||||||||||||||||||||||||||||||||||||||||||||||||||||||||||||||||||||||||||||||||||||||||||||||||||||||||||||||||||||||||||||||||||||||||||||||||||||||||||||||||||||||||||||||||||||||||||||||||||||||||||||||||||||||||||||||||||||||
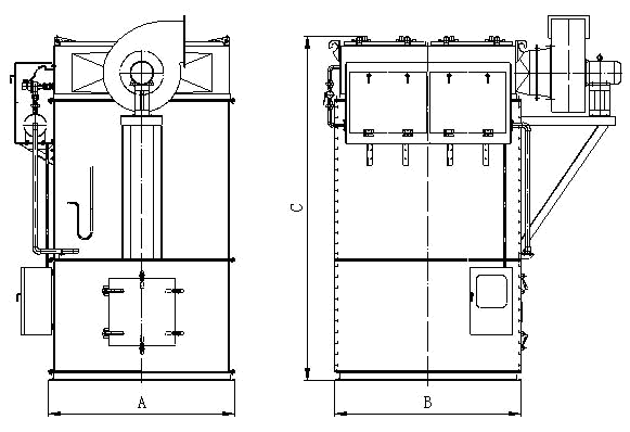
用途: 库顶脉冲袋式除尘器是适用于电厂灰库库顶的一种高效净化设备,它采用了先进的清灰技术,具有气体处理能力大、净化效果好、结构简单、工作可靠、维修量小等特点。我公司生产的GCMC型脉冲袋式除尘器,采用了国外先进CMOS集成电路控制仪,具有集成度高,可靠性强等特点;本产品经电厂长期使用证明,其性能稳定、运行可靠,深得用户信赖。 结构特点: MC型脉冲袋式除尘器有以下几部分组成: 1. 上箱体:包括可掀起的盖板(或紧固式上盖板)和出风口; 2. 中箱体:包括多孔板、滤袋、龙骨、文氏管等; 3. 下箱体:包括测压接头、检修门等; 4. 喷吹系统:包括脉冲控制仪、电磁脉冲阀、喷吹管、气包。
工作原理: 由于库内压力作用使含尘气体由库内进入除尘器下箱体内,在含尘气体通过滤袋进入上箱体过程中,由于滤袋的过滤作用将尘气分离开,粉尘被吸附在滤袋外壁上,而净化后的气体穿过滤袋进入上箱体,从出风口排出(或抽出)。含尘气体通过滤袋的净化过程,随着时间的增加而吸附在滤袋上的粉尘越来越多,增加了滤袋的阻力,只是通过滤袋气体量逐渐减少。为保证除尘效果必须使阻力控制在限定范围内(一般1176-1470Pa,及控制滤袋外的附灰厚度,当阻力超过一定数量时,由脉冲控制仪发出指令,按顺序触发各控制阀开启脉冲阀,此时气包内的压缩空气定时地经脉冲阀从喷吹管的各孔喷出,喷射到各对应的滤袋内,滤袋在气流瞬间反作用下急剧膨胀,使集附在滤袋表面的粉尘脱落,滤袋得到再生。被清掉的粉尘落回库内,集附在滤袋上的粉尘备有周期的脉冲气流喷吹清除,使净化的气体正常通过,由于清灰是几组滤袋依次分别进行,并不切断需要处理的含尘空气,所以在清灰过程中,除尘器的处理能力保持不变。 除尘器采用“208”涤纶绒布、针刺呢、复合针刺呢、诺美克斯(进口)作为滤袋材料,使用温度在120℃以下,不适用于高温、高湿和有腐蚀性气体的净化。温度如超过120℃,可使用芳砜纶作滤袋料,其使用温度可达230℃。 过滤风速是指气体通过滤袋的速度,它是评价除尘器效果的重要指标,它与含尘浓度、性质、滤袋材料及清灰方式、喷吹压力有关。一般用于粉尘灰库上部时,过滤风速应小于1.0m/min. MC脉冲袋式除尘器主要性能表:
主要部件: 1. 脉冲控制仪 脉冲控制仪是脉冲袋式除尘器的主控设备,运行时无噪声、无火花、无触点、无机械易损件,具有体积小、重量轻、寿命长、工作可靠、维修方便等优点。 2.电磁脉冲阀 电磁脉冲阀是脉冲袋式除尘器喷吹清灰系统的主要装置,它是向滤袋内喷吹压缩空气的开关,受脉冲控制仪输出信号的控制。本除尘器采用先进的电磁脉冲阀,它将脉冲阀与先导阀组合在一起,除阀体进气口与储气筒金属管连接外,阀体本身无软管连接,造型新颖、结构合理、安装方便、工作可靠、寿命长、清洗力大、耗电量小。 3.文式管 是清灰系统诱导二次风,加强压力波的主要部件,采用铝合金铸成,机械强度高。 4.滤袋框架 支撑滤袋在负压作用下仍保持有效的过滤面积。有笼形及弹簧二种,笼型框架比较挺拔,上抽方便;弹簧框架表面光洁、重量轻,清灰时抖动幅度大。 5.滤袋 滤袋是过滤含尘气体的部件。本产品有“208”涤纶绒布、针刺呢、复合针刺呢、诺美克斯(进口)供用户选择。温度如超过120℃,可使用芳砜纶作滤袋料。 外形尺寸(mm):
![]() 选型与订货: 选用脉冲袋式除尘器用户应提供设备处理风量、过滤面积及与之相关的布置等资料。如设备需要支腿,请用户说明。 | ||||||||||||||||||||||||||||||||||||||||||||||||||||||||||||||||||||||||||||||||||||||||||||||||||||||||||||||||||||||||||||||||||||||||||||||||||||||||||||||||||||||||||||||||||||||||||||||||||||||||||||||||||||||||||||||||||||||||||||||||||